New construction project in Beniarbeig

Description

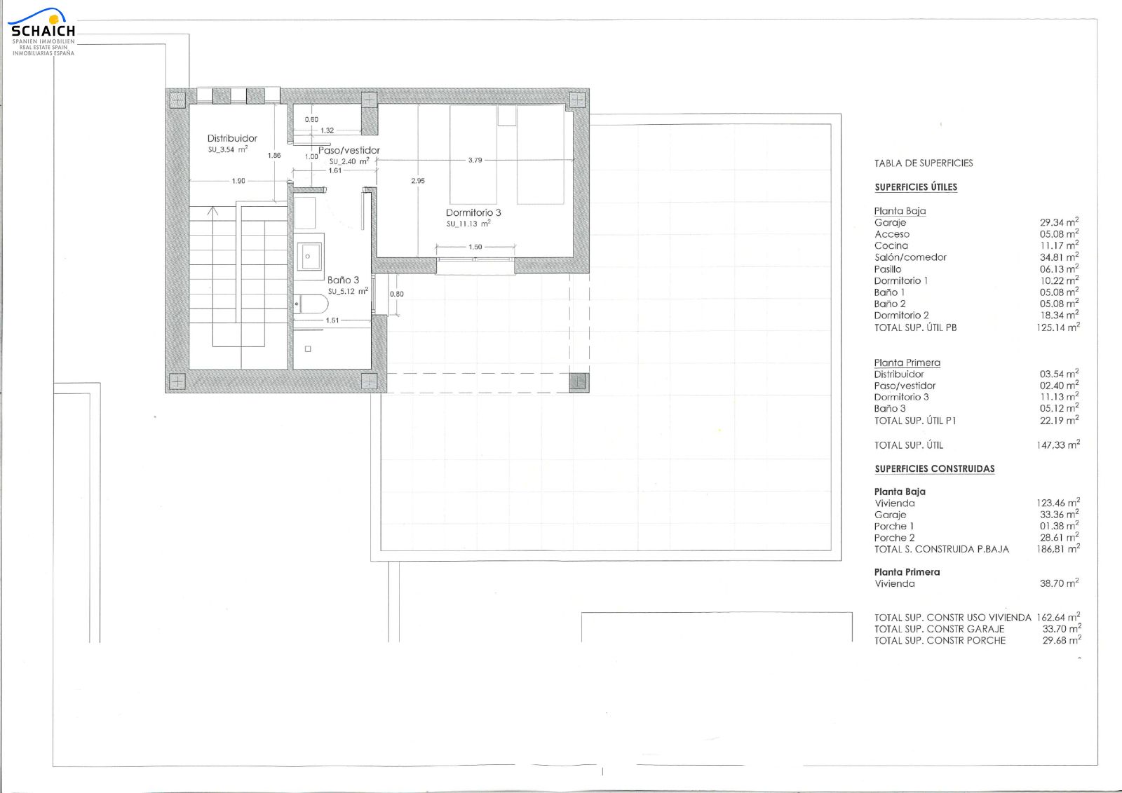
New construction project in Beniarbeig. Modern villa with living/dining room, open-plan kitchen with cooking island, 3 bedrooms, and 3 bathrooms. Covered terrace with private pool and garage. High-quality finishes. Located in a new residential area with all amenities.Beniarbeig is 20 minutes from Denia. The house is situated in a quiet area with open and beautiful views.
The village of Beniarbeig can be reached in 5 minutes, where you will find supermarkets and various shops.Underfloor heating, garage, pool, covered terrace, open kitchen, air conditioning, mains connection, heat pump, aluminium windows, garden including irrigation system, and much more.Please contact us for more information.

General information

villa
Beniarbeig
670.000€
809 m2
145 m2
3
3
1

Equipment

Yes
Central
Yes

Characteristics

Good